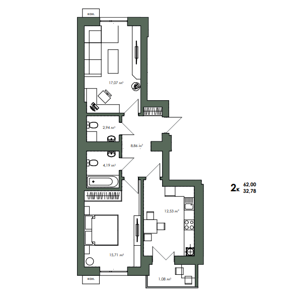
2-кімнатна планування 62 м² в ЖК Art Misto, с. Софіївська Борщагівка
ЖК зданий
Перевірено 15.09.2021
1.83 млн Грн
29 500 Грн/м²
Поверхи:1-4 / 4
Загальна площа:62 м²
Житлова площа:32.78 м²
Площа кухні:12.53 м²
Варіанти придбання
Запитати у Забудовника

Зв'язатися з відділом продажів ЖК Art Misto ви можете за телефоном:
Розташування
Адреса:Київська обл., Києво-Святошинський район, с. Софіївська Борщагівка, вул. Свободи, 1в
Loading map...

Купуй квартиру на Domik.ua
Широкий вибір квартир від власників, забудовників та ріелторів
Детальніше
- Новобудови України
- Київська обл.
- Києво-Святошинський район
- с. Софіївська Борщагівка
- ЖК Art Misto
- 2-кімнатна планування 62 м²