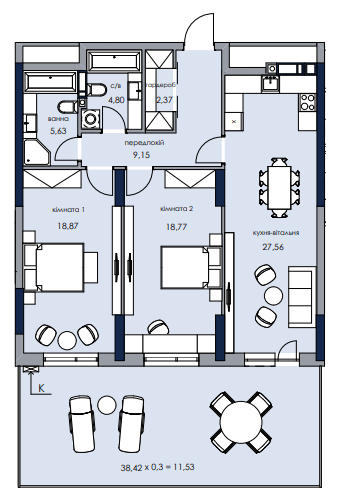
2-кімнатна планування 99.73 м² в ЖК Новий Автограф, Київ
Індекс надійності новобудови
78з 220
Перевірено 24.03.2021
На жаль всі квартири з данним плануванням продані
3.83 млн Грн
38 400 Грн/м²
Поверхи:3 / 26
Загальна площа:99.73 м²
Житлова площа:37.64 м²
Площа кухні:27.56 м²
Ще 2-кімнатні планування:
Варіанти придбання
Запитати у Забудовника

Зв'язатися з відділом продажів ЖК Новий Автограф ви можете за телефоном:
Розташування
Адреса:Київ, Дніпровський район, Північно-Броварський (Комсомольський), вул. Генерала Жмаченка, 26
Найближчі станції метро:Дарниця – 21 хв.
Найближчі орієнтири:Парк Перемоги, Лісопарк "Берізка", "Сад каміння" в Парку Перемоги, Парк Андрія Малишко, Парк "Попудренко"
Loading map...

Авторський канал ріелтора в Іспанії
Знайомтесь з Бенідормом, нерухомістю та стилем життя. Новобудови регіону, аналітика, інвестиції
Детальніше
- Новобудови України
- Київ
- Дніпровський район
- Північно-Броварський (Комсомольський)
- ЖК Новий Автограф
- 2-кімнатна планування 99.73 м²