ЖК Park Lake City
У тебя появилась уникальная возможность купить жилье в первом в Украине клубном эко-комплексе у озера. А это значит, что каждый день ты сможешь любоваться красотой окружающей природы и загорать на 150-метровом белоснежном песчаном пляже. Инвесторам предлагают квартиры с собственными лаунж-зонами и зелеными двориками. На территории комплекса будет работать консьерж-сервис, круглосуточная охрана, детский сад, начальная школа, торговые и развлекательные заведения. Вишенка на торте – это артезианская вода, поступающая в краны со скважины глубиной в 180 метров.

Продажа квартир от застройщика
Варианты покупки
Характеристики ЖК
| ||||||||||||||||||||||||
| ||||||||||||||||||||||||
|
Ход строительства
Застройщик
Задать вопрос Застройщику

Описание
О жилом комплексе
Жилой комплекс Park Lake City расположен в 15-ти минутах от Киева, в селе Подгорцы Обуховского района. Реализует проект известный в киевском регионе застройщик – группа компаний DIM. Комплекс состоит из двух очередей – PLC AQUA и PLC VITA, а также ряда таунхаусов.
Комплекс объединит 28 четырехэтажных домов клубного формата. PLC AQUA будет представлен 14 домами бизнес-класса. Четырнадцать новостроев VITA же станут «сердцем» проекта и будут расположены вокруг озера.
Новый проект – это:
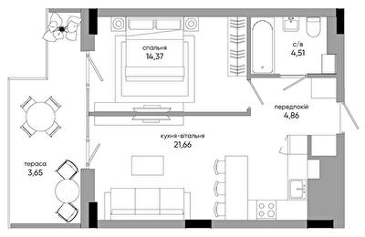
- продуманные планировки: на каждом этаже запроектировано от 3 до 7 квартир планировкой на 1-2 комнаты площадью от 44 квадратных метров и высотой потолков в 2,9-3,3 метра;
- квартиры с собственными террасами: большинство жилых помещений комплекса оснащены просторными открытыми террасами;
- жилье с камином: на верхних этажах запроектированы просторные пентхаусы с собственным камином.
Купить квартиру в ЖК Park Lake City инвесторы смогут с отделкой под ремонт. Больше деталей можно найти на официальном сайте застройщика или в отделе продаж.
Расположение
Объект строят в селе Подгорцы, на ул. Киевская, 15/45. Благодаря удобному транспортному сообщению со столицей, дорога к центральным районам Киева автомобилем не займет больше 20 минут. В 10 минутах ходьбы от комплекса также находится остановка общественного транспорта, откуда курсируют пригородные автобусы № 309 и № 789.
Инфраструктура
Основной изюминкой комплекса станет особая концепция обустройства территории, а это:
- магазины разного целевого назначения;
- французское кафе и ресторан;
- собственный детские садик;
- международная школа;
- собственное озеро с обустроенным пляжем и зоной барбекю;
- ландшафтный парк;
- спортивные и игровые площадки;
- наземный паркинг на 895 машиномест;
- амфитеатр и много другое.
Территория комплекса будет закрытой и охраняемой.
Материалы и технологии
Проектировался новострой в соответствии с требованиями экологичности и безопасности международной организации BREEAM, что позволит комплексу соответствовать завяленному классу «бизнес». Дома возводятся по монолитно-каркасной технологии. Ожидается, что отопление будет обеспечиваться индивидуально, а в ходе строительства будет проведено фасадное утепление кирпичных стен минеральной ватой.
Архитектура и внешний вид
Четырехэтажные дома выполнены в современном архитектурном стиле и минималистичном дизайне. Оригинальности объектам придаст большая площадь остекления, в том числе и в оформлении балконных групп.
Преимущества
Развитая инфраструктура. Квартиры с террасами и камином. Водоем на территории комплекса. Количество мест на стоянке равно количеству квартир.
Недостатки
Высокая стоимость квадратного метра. Пробки в часы пик на въезде/выезде из Киева.
Этот ЖК часто ищут по таким названиям: Парк Лейк Сити
С этим ЖК читают
А что вы думаете об этом комплексе?

- Новостройки Украины
- Киевская обл.
- Обуховский район
- с. Подгорцы
- ЖК Park Lake City
Жк понравился, территория достаточно большая и продуманная, красиво оформляют дизайнеры очень хорошо выполняют свою работу, мне нравится что есть свой водоем. Атмосферное место, у меня по приезду туда мозг отключается и я отдыхаю, ну это явно для любителей загородной жизни
Очень красивые домики и панорамные окна, терраса так вообще еще и с видом на озеро - красота неописуемая и деткам очень нравится