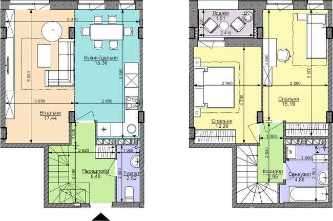
Двухуровневая планировка 80.62 м² в ЖК Respublika, Киев
Индекс надёжности новостройки
125из 220
Проверено 18.06.2021
Варианты покупки
Задать вопрос Застройщику

Связаться с отделом продаж ЖК Respublika вы можете по телефону:
Расположение
Адрес:Киев, Голосеевский район, Теремки, ул. Большая Окружная дорога, 1
Ближайшие ориентиры:урочище Теремки, Национальный комплекс "Экспоцентр Украины" (ВДНХ)
Loading map...

Авторський канал ріелтора в Іспанії
Знайомтесь з Бенідормом, нерухомістю та стилем життя. Новобудови регіону, аналітика, інвестиції
Подробнее
- Новостройки Украины
- Киев
- Голосеевский район
- Теремки
- ЖК Respublika
- Двухуровневая планировка 80.62 м²