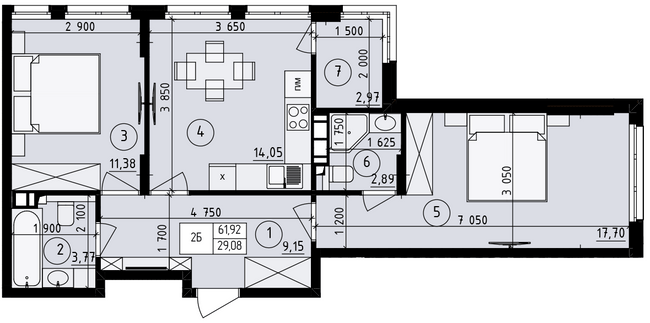
2-кімнатна планування 61.92 м² в ЖК Praga-2, Київ
Індекс надійності новобудови
-37з 220
Перевірено 23.12.2021
1.42 млн Грн
23 000 Грн/м²
Поверхи:1 / 9
Загальна площа:61.92 м²
Житлова площа:29.08 м²
Площа кухні:14.05 м²
Ще 2-кімнатні планування:
Варіанти придбання
Запитати у Забудовника

Зв'язатися з відділом продажів ЖК Praga-2 ви можете за телефоном:

Авторський канал ріелтора в Іспанії
Знайомтесь з Бенідормом, нерухомістю та стилем життя. Новобудови регіону, аналітика, інвестиції
Детальніше
- Новобудови України
- Київ
- Деснянський район
- Троєщина
- ЖК Praga-2
- 2-кімнатна планування 61.92 м²