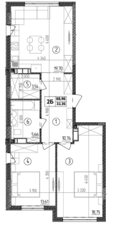
2-кімнатна планування 88.96 м² в ЖК Praga-2, Київ
Індекс надійності новобудови
-37з 220
Перевірено 23.12.2021
На жаль всі квартири з данним плануванням продані
1.41 млн Грн
15 900 Грн/м²
Поверхи:2-4 / 9
Загальна площа:88.96 м²
Житлова площа:32.36 м²
Площа кухні:19.17 м²
Ще 2-кімнатні планування:
Варіанти придбання
Запитати у Забудовника

Зв'язатися з відділом продажів ЖК Praga-2 ви можете за телефоном:

Авторський канал ріелтора в Іспанії
Знайомтесь з Бенідормом, нерухомістю та стилем життя. Новобудови регіону, аналітика, інвестиції
Детальніше
- Новобудови України
- Київ
- Деснянський район
- Троєщина
- ЖК Praga-2
- 2-кімнатна планування 88.96 м²